Skip to content
Home
About
Services
Therapeutic Gardens
Sacred Geometry Garden Design
Productive Landscape
Edible & Pollinator Landscape Design
Custom Landscape & Plant Design
Resonant Fire
Chakra & Energy Mapping Gardens
Areas
Malibu, CA
San Marino, CA
Montecito, CA
Rolling Hills, CA
Ojai, CA
All Areas
Gallery
Plans & Renders
Contact
Home
About
Services
Therapeutic Gardens
Sacred Geometry Garden Design
Productive Landscape
Edible & Pollinator Landscape Design
Custom Landscape & Plant Design
Resonant Fire
Chakra & Energy Mapping Gardens
Areas
Malibu, CA
San Marino, CA
Montecito, CA
Rolling Hills, CA
Ojai, CA
All Areas
Gallery
Plans & Renders
Contact
323-206-1595
Get a Quote
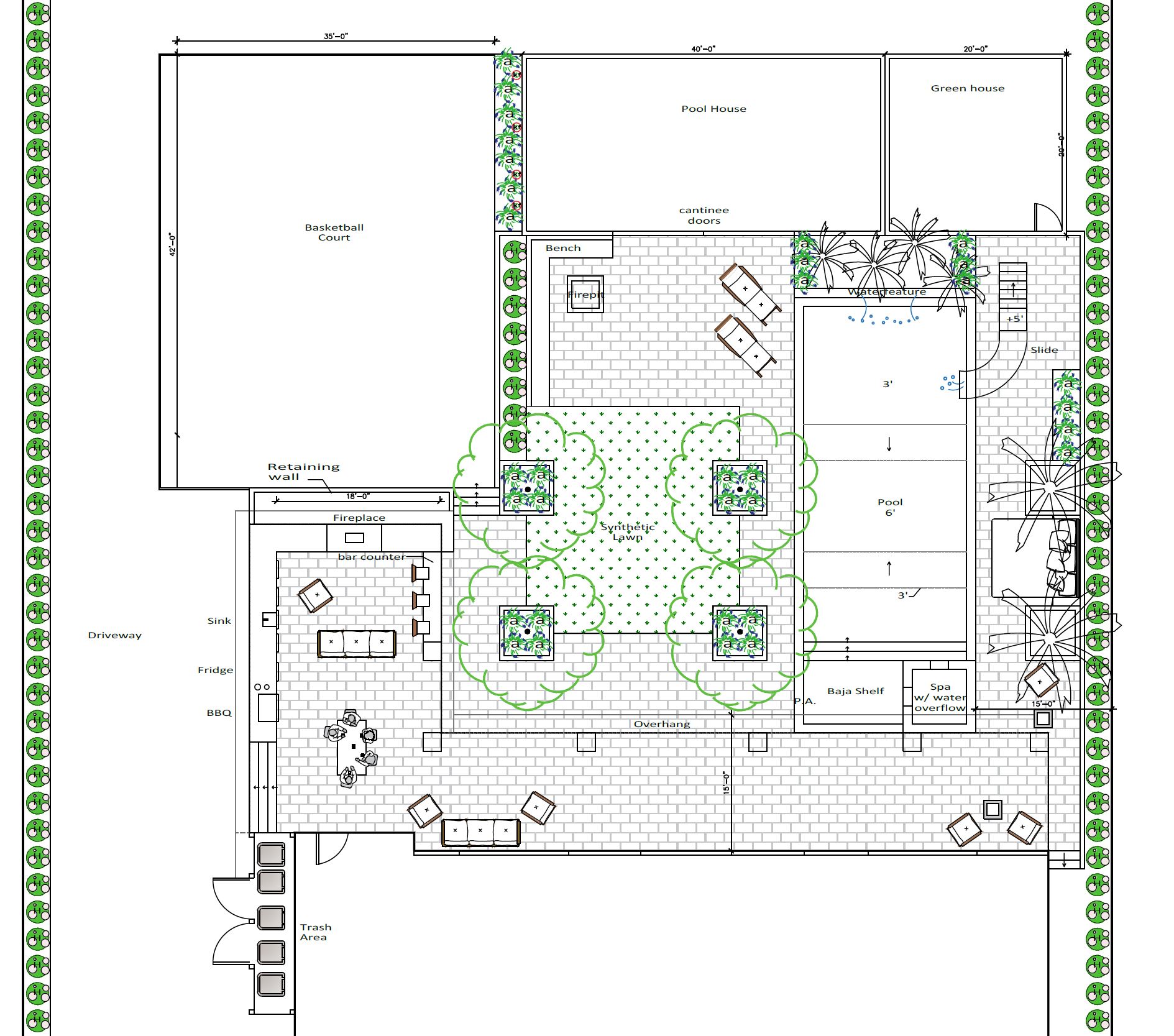
Plans & Renders
Home
Plans & Renders
Designs that align energy, ecology, and elegance
We craft detailed plans and 3D renders rooted in sacred geometry, Cymatics, and sustainable design. From zoning and fire safety to chakra-aligned layouts, every drawing balances beauty, intention, and function.